helle 3 ZKB-Wohnung in Top Lage, Balkon mit Südausrichtung

Objektdaten

  • Objekt ID
    KI-10000+ 42
  • Objekttyp
    Wohnung
  • Adresse
    86150 Augsburg
  • Etage
    4
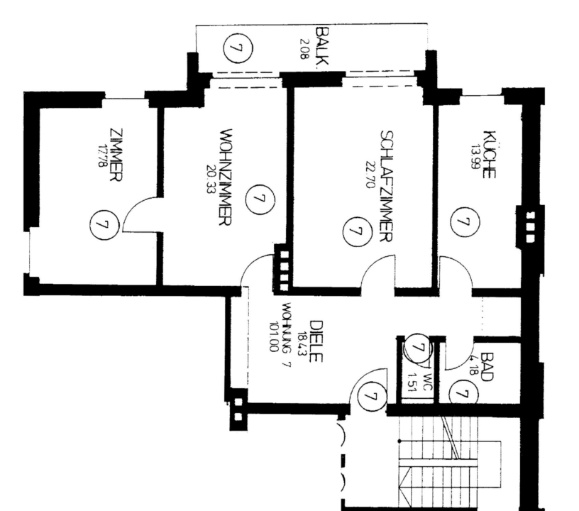
  • Wohnfläche ca.
    101 m²
  • Zimmer
    3
  • Schlafzimmer
    1
  • Badezimmer
    1
  • Heizungsart
    Zentralheizung
  • Wesentliche Energieträger
    Gas
  • Baujahr
    1998
  • Zustand
    gepflegt
  • Ausstattung
    Standard
  • Status
    vermietet
  • Hausgeld
    415,55 EUR
  • Käufer­provision
    3,57% inkl. MwSt.Provisionshinweis: Käufer und Verkäufer zahlen jeweils eine Provision in Höhe von 3,57 % inkl. gesetzlicher Mehrwertsteuer (Halbteilungsprinzip).
  • Kaufpreis
    449.000 EUR

Ansprechpartner

Beschreibung

Allgemein

Entdecken Sie diese charmante 3-Zimmer-Wohnung zum Kauf, ideal für anspruchsvolle Mieter oder Eigennutzer. Mit einer großzügigen Wohnfläche von 101 m² bietet diese Immobilie im 4. Obergeschoss ein komfortables Zuhause.

Ein besonderes Highlight ist der große Balkon, der sich perfekt für entspannte Sommerabende eignet. Hier können Sie die warmen Sonnenstrahlen genießen und die Abende in gemütlicher Atmosphäre ausklingen lassen.

Die Wohnung ist derzeit vermietet, was sie zu einer attraktiven Investitionsmöglichkeit macht. Sie verfügt über ein separates WC, das für zusätzlichen Komfort sorgt.

Die Lage in Augsburg bietet eine ideale Kombination aus Stadtnähe und Ruhe. Hier genießen Sie die Vorzüge des städtischen Lebens, ohne auf Behaglichkeit und Privatsphäre verzichten zu müssen.

Nutzen Sie diese Gelegenheit und sichern Sie sich ein Stück Wohntraum in Augsburg.

Ausstattung

• Hohe Decken
• großer Balkon mit Südausrichtung
• gepflegte Ausstattung
• Waschmaschinenanschluss im Badezimmer
• separates WC
• Badezimmer mit Tageslicht
• Funktionaler Grundriss
• Fenster 2-fach verglast

Lage

Die Wohnung befindet sich in attraktiver und zentraler Lage im Herzen von Augsburg. Einkaufsmöglichkeiten des täglichen Bedarfs, Ärzte, Apotheken sowie Cafés und Restaurants sind in wenigen Minuten fußläufig erreichbar. Eine sehr gute Anbindung an den öffentlichen Nahverkehr sorgt für kurze Wege in umliegende Stadtteile. Auch Grünflächen und Erholungsmöglichkeiten befinden sich in der näheren Umgebung und bieten einen angenehmen Ausgleich zum urbanen Leben.

Google Maps

Für das Anzeigen einer Karte nutzen wir den Dienst Google Maps der Firma Google Ireland Limited.
Indem Sie auf „Karte laden“ klicken, willigen Sie in die Verwendung der nicht notwendigen Datenspeicherung sowie in die folgende Verarbeitung der Daten ein.
Sie können Ihre Einwilligung jederzeit über das Cookie-Banner widerrufen.
Weitere Informationen erhalten Sie in unserer Datenschutzerklärung.

Karte laden

Die dargestellte Position der Immobilie ist nur eine ungefähre Angabe.

Merkmale

  • Einbauküche
  • Gäste-WC

Energieausweis

  • Energie­ausweistyp
    Verbrauchs­ausweis
  • Ausstellungs­datum
    ab dem 1.5.2014
  • Baujahr lt. Energie­ausweis
    1998
  • Primär­energie­träger
    Gas
  • Energie­effizienz­klasse
    E

Anhänge

Keine Anhänge vorhanden.

Kontakt

*“ zeigt erforderliche Felder an

Sie suchen eine zuverlässige Hausverwaltung? Hier geht's zur Knirsch Hausverwaltung GmbH!

Mehr erfahren »