Rechteckiges Baugrundstück mit genehmigter Planung, sonnig, Südterrasse, Loggia & Garage

Objektdaten

  • Objekt ID
    KI-10000+ 72
  • Objekttypen
    Grundstück, Wohngrundstück
  • Adresse
    86356 Neusäß
  • Grund­stück ca.
    428 m²
  • Grundflächenzahl
    0.35
  • Verfügbar ab
    sofort
  • Käufer­provision
    3,57 % inkl. 19 % MwSt. inkl. MwSt.Beim Kauf dieser Immobilie entstehen 3,57 Prozent Provision inklusive 19 Prozent Mehrwertsteuer für die Knirsch Immobilien GmbH.
  • Kaufpreis
    339.000 EUR

Ansprechpartner

Beschreibung

Allgemein

Zum Verkauf steht ein attraktives Grundstück in Westheim, das sich ideal für die Verwirklichung eines Traumhauses eignet. Die bebaubare Fläche beträgt ca. 342 m², ergänzt durch eine Zufahrt mit rund 86 m². Die Zufahrt befindet sich im Eigentum des Grundstückseigentümers, während die Nachbarn über ein entsprechendes Geh- und Fahrtrecht im Grundbuch eingetragen sind.

Das Grundstück kann gemäß den baurechtlichen Vorgaben mit einer Grundflächenzahl von 0,35 und einer Grundflächenzahl zwei von 0,6 bebaut werden und bietet damit eine sehr gute Grundlage für eine durchdachte und großzügige Bebauung.

Die genehmigte Planung des Erdgeschosses umfasst ca. 94 m² Wohnfläche und bietet eine großzügige Wohn-, Koch- und Esskombination mit ausreichend Platz für einen Essbereich. Ergänzt wird das Raumangebot durch ein Schlafzimmer, ein Badezimmer, ein Gäste-WC sowie eine Garderobe. Die Planung ermöglicht damit auch ein komfortables Wohnen auf einer Ebene. Von hier aus gelangt man auf eine schöne Süd- Westterrasse mit angrenzendem Gartenbereich. Zusätzlich ist eine Garage mit ca. 25 m² vorgesehen. Das Obergeschoss ist ebenfalls mit ca. 94 m² geplant und verfügt über einen offenen Wohn-, Ess- und Kochbereich. Darüber hinaus stehen zwei Schlafzimmer, ein Badezimmer sowie ein praktischer Abstellraum zur Verfügung. Ein besonderes Highlight stellt die Loggia dar, die zusätzlichen Freiraum im Obergeschoss schafft.

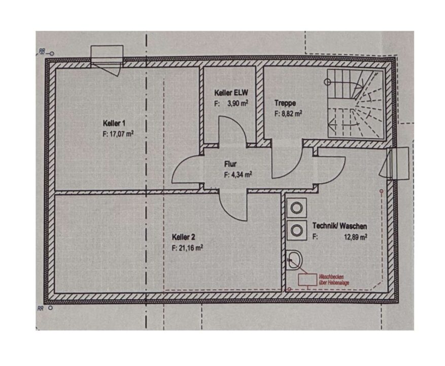
Ergänzend ist ein entsprechender Keller eingeplant, der zusätzliche wertvolle Nutzfläche schafft und vielseitige Nutzungsmöglichkeiten bietet. Die vorliegende Planung ist zudem als Konzept mit zwei separaten Einheiten ausgelegt, kann jedoch problemlos zu einem Einfamilienhaus umgeplant werden.

Insgesamt bietet dieses Grundstück mit bereits genehmigter Planung eine hervorragende Gelegenheit, ohne lange Vorlaufzeiten den Traum vom eigenen Zuhause zu realisieren.

Lage

Das Grundstück befindet sich im westlichen Teil von Westheim, einem Stadtteil von Neusäß, und überzeugt durch seine gewachsene und gepflegte Umgebung. Die umliegende Bebauung ist geprägt von Einfamilienhäusern, Doppelhäusern sowie Reihenhäusern, wodurch ein harmonisches und ansprechendes Gesamtbild entsteht.

Das Grundstück selbst zeichnet sich durch eine helle und sonnige Ausrichtung aus und bietet damit ideale Voraussetzungen für eine attraktive Bebauung sowie ein angenehmes Wohnumfeld.

Die Infrastruktur in der Umgebung ist gut ausgebaut. Einkaufsmöglichkeiten, Bäckereien, Apotheken sowie Ärzte befinden sich in der Umgebung und sind gut erreichbar. Auch Kindergärten und Schulen sind gut angebunden und unterstreichen die Attraktivität des Standorts, insbesondere für Familien.

Für Freizeit und Erholung stehen zahlreiche Möglichkeiten zur Verfügung. Grünflächen sowie nahegelegene Naherholungsgebiete laden zu Spaziergängen, sportlichen Aktivitäten und zur Entspannung im Freien ein.

Die Verkehrsanbindung ist ebenfalls vorteilhaft. Sowohl die Augsburger Innenstadt als auch das überregionale Straßennetz sind in kurzer Zeit erreichbar, wodurch der Standort auch für Pendler sehr interessant ist. Insgesamt bietet die Lage eine gelungene Kombination aus guter Infrastruktur, naturnahem Umfeld und vielseitigen Entwicklungsmöglichkeiten.

Google Maps

Für das Anzeigen einer Karte nutzen wir den Dienst Google Maps der Firma Google Ireland Limited.
Indem Sie auf „Karte laden“ klicken, willigen Sie in die Verwendung der nicht notwendigen Datenspeicherung sowie in die folgende Verarbeitung der Daten ein.
Sie können Ihre Einwilligung jederzeit über das Cookie-Banner widerrufen.
Weitere Informationen erhalten Sie in unserer Datenschutzerklärung.

Karte laden

Die dargestellte Position der Immobilie ist nur eine ungefähre Angabe.

Merkmale

Keine Merkmale vorhanden.

Energieausweis

nicht vorhanden

Keine Daten vorhanden.

Anhänge

Keine Anhänge vorhanden.

Kontakt

*“ zeigt erforderliche Felder an

Sie suchen eine zuverlässige Hausverwaltung? Hier geht's zur Knirsch Hausverwaltung GmbH!

Mehr erfahren »