Vielseitig nutzbares Gewerbeobjekt, teilbar, moderne Büroflächen, Lagerhallen und Tagungsräume

Objektdaten

  • Objekt ID
    KI-10000+ 88
  • Objekttypen
    Büro/Praxis, Bürofläche
  • Adresse
    86368 Gersthofen
  • Etagen im Haus
    2
  • Bürofläche ca.
    208 m²
  • Heizungsart
    Zentralheizung
  • Wesentliche Energieträger
    Gas
  • Umgebung
    Fernbahnhof: 6,0 km
    Autobahn: 8,0 km
    Bus: 1,0 km
  • Baujahr
    2009
  • Zustand
    neuwertig
  • Ausstattung
    gehoben
  • Verfügbar ab
    sofort
  • Stellplätze gesamt
    5
  • Kaution
    7.488
  • Kaltmiete
    2.496,00 EUR
  • Nebenkosten
    1.000,00 EUR

Ansprechpartner

Beschreibung

Allgemein

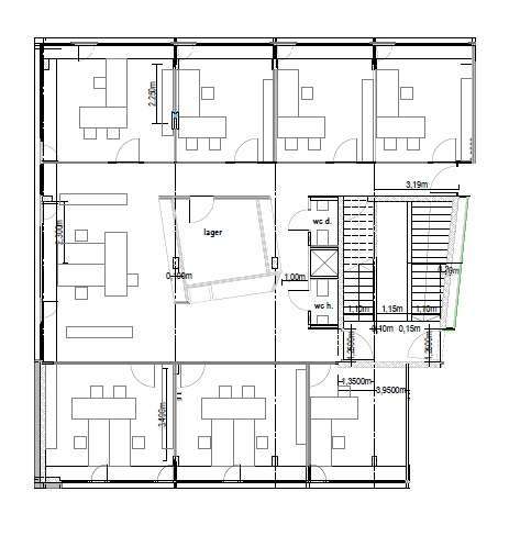
Das Büro in der Röntgenstraße 6, 86368 Gersthofen, bietet auf ca. 208 m² eine moderne und flexible Bürofläche, die sich ideal für Unternehmen mit Anspruch eignet. Sieben helle Büroräume mit großzügigen Fensterfronten sorgen für eine natürliche Belichtung und schaffen eine angenehme, konzentrierte Arbeitsatmosphäre. Der hochwertige Teppichboden trägt zusätzlich zu einer ruhigen und professionellen Umgebung bei.

Ergänzt wird die Etage durch einen praktischen Lagerraum, eine Kopiernische sowie getrennte Sanitäranlagen, die den reibungslosen Alltag im Bürobetrieb sicherstellen. Das durchdachte Raumkonzept ermöglicht es, sämtliche Bereiche individuell zu gestalten und flexibel an die spezifischen Anforderungen Ihres Unternehmens anzupassen, ob als Einzel- oder Teambüros, Besprechungsbereiche oder eine Kombination aus beidem.

Mit seiner hochwertigen Ausstattung, der flexiblen Raumstruktur und der hervorragenden Lage bietet dieses Büro optimale Voraussetzungen für effizientes Arbeiten und nachhaltigen Unternehmenserfolg. Sichern Sie sich einen repräsentativen Standort, der Ihr Unternehmen bestmöglich nach vorne bringt.

Ausstattung

Mietflächen & Konditionen:

Bürofläche: ca. 208 m² | Mietpreis: 12,00 EUR/m²

Außenstellplätze: 5 Stellplätze | Mietpreis: 45,00 EUR/Stellplatz

Lage

Dieses Bürogebäude zeichnet sich durch eine erstklassige Lage und herausragende Verkehrsanbindung aus. Über die Bundesstraße B2 erreichen Sie schnell sowohl Augsburg als auch Donauwörth, während die nahegelegene Autobahn A8 direkte Verbindungen nach Stuttgart und München bietet. Die Lage in Gersthofen gewährleistet zudem eine schnelle Erreichbarkeit des Stadtzentrums sowie umliegender Industrie- und Wohngebiete.

Trotz der Lage im Industriegebiet ist die Anbindung an öffentliche Verkehrsmittel gegeben, die Bushaltestelle in der Bergstraße ermöglicht eine bequeme Verbindung zum gesamten öffentlichen Verkehrsnetz.

Dank der verkehrsgünstigen Lage und der exzellenten Infrastruktur profitieren Sie von zahlreichen Restaurants und Einkaufsmöglichkeiten in unmittelbarer Nähe, die eine perfekte Versorgung für Ihre Mitarbeiter bieten. Die Kombination aus moderner Ausstattung, flexiblen Nutzungsmöglichkeiten und idealer Erreichbarkeit macht diesen Standort zur Grundlage für den Erfolg Ihres Unternehmens.

Fernbahnhof 6 km | Autobahn 8 km | Bus 1 km 
Google Maps

Für das Anzeigen einer Karte nutzen wir den Dienst Google Maps der Firma Google Ireland Limited.
Indem Sie auf „Karte laden“ klicken, willigen Sie in die Verwendung der nicht notwendigen Datenspeicherung sowie in die folgende Verarbeitung der Daten ein.
Sie können Ihre Einwilligung jederzeit über das Cookie-Banner widerrufen.
Weitere Informationen erhalten Sie in unserer Datenschutzerklärung.

Karte laden

Die dargestellte Position der Immobilie ist nur eine ungefähre Angabe.

Merkmale

Keine Merkmale vorhanden.

Energieausweis

  • Energie­ausweistyp
    Verbrauchs­ausweis
  • Ausstellungs­datum
    ab dem 1.5.2014
  • Baujahr
    2009
  • Primär­energie­träger
    Gas
  • Endenergie­verbrauch Strom
    33,00 kWh/(m²·a)
  • Endenergie­verbrauch Wärme
    59,00 kWh/(m²·a)

Anhänge

Keine Anhänge vorhanden.

Kontakt

*“ zeigt erforderliche Felder an

Sie suchen eine zuverlässige Hausverwaltung? Hier geht's zur Knirsch Hausverwaltung GmbH!

Mehr erfahren »